转换梁截面剪扭控制浅析(建筑结构优化)
一、问题提出
目前住宅工程中对于转换的方式基本以转换梁形式为主,规范中关于转换梁截面的限制也仅仅通过控制剪压比实现,并未考虑转换梁扭矩影响,但实际工程中由于建筑功能要求,转换梁与上部被转换剪力墙存在较大偏心,甚至存在次梁转换等多级转换的情况,那么此时转换梁所受扭矩并不能忽略,对转换梁截面必然产生巨大影响,目前设计软件在考虑剪扭问题上还存在不足,那么对于此类存在较大扭矩的转换梁如何设计确保足够的安全度是必要的,本文就其剪扭问题进行展开分析并给出合理建议。
二、转换梁剪扭截面设计
(一)规范对此要求存在不足
1、抗震设计中,规范对于转换梁截面仅仅有抗剪截面要求,对于扭矩并未提及,结合规范相关条文解释,其主要原因还是对于偏心或者存在多级转换梁可能存在较大扭矩情况是不建议采用的,参见《高层建筑混凝土结构技术规程》10.2.9条文解释,通常情况转换梁布置应以直接传力并且居中布置为主减少偏心从而引起过大扭矩,对于存在较大扭矩情况,由于其受力较复杂需要补充应力分析,确保安全;{建筑施工图设计优化}


2、但实际工程中,通常由于建筑功能原因,被转换剪力墙与转换梁边齐布置或者存在多级转换情况,实际存在较大偏心弯矩,由于转换梁截面往往较大,抗扭刚度大,转换梁必然存在较大扭矩作用,但由于对于转换梁规范并没有截面剪扭计算要求,通常软件在此方面要么缺少验算要么按混凝土普通构件进行考虑,如此必然减小转换梁安全度。故工程设计中对转换梁剪扭截面设计是必要的。
工程示例一 | 工程示例二 |
|
|
(二)转换梁剪扭截面计算建议
根据《混凝土结构设计规范》6.4.1条相关规定,截面同时考虑剪力与扭矩作用时,剪切应力叠加考虑,再根据《高规》10.2.8条(见上)相关规定,剪压比限值比普通构件要严,
混凝土规范:
6.4.1-1
故针对转换梁截面验算建议按以下公式进行剪扭验算:
1、持久、短暂设计状况 
2、地震设计状况 
(三)案例分析
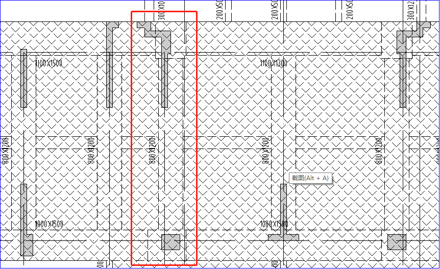
1、概况:某部分框支剪力墙结构,建筑高度78米,转换层在第三层,采用盈建科软件计算,转换层局部布置图如下:
转换梁截面800x1200,混凝土强度等级C40,被转换墙偏心布置,垂直方向跨中设置梁;

{建筑设计优化}
2、软件计算注意问题
采用软件计算,计算参数设置对结果影响较大,主要影响转换梁扭矩大小,有如下参数需要注意:
(1)转换层楼板采用弹性板6或者弹性膜。由于此楼板面内承受较大的内力,需要按其真实的刚度去考虑;
(2)转换梁扭转系数取值1.0,软件默认0.4,由于转换梁截面较大,抗扭刚度很大,考虑楼板的有利影响转换梁扭矩通常也不会减小很多,另外由于楼板本身已经采用弹性板计算,已经真实考虑其影响,转换梁扭矩不应再折减;
3、截面验算
选择此转换梁有被转换的墙体一端截面,软件计算结果如下:

显然软件计算对于抗震组合仅考虑截面抗剪验算,并未考虑扭矩影响,这也是完全按照规范的公式计算的,无可厚非,现考虑扭矩影响,进行手工校核如下:

,仅考虑抗剪时为3.41,剪压比分别为1.18和1.01,相当于剪压比比仅考虑剪力变大了约17%,故结果更为不利。
(四)相关措施
针对转换梁受扭情况,通常有以下措施可以提高转换梁抗扭承载力
1、常见做法增大转换梁截面,通常增大截面措施最直接,效果也较好,但对建筑品质有一定影响;
2、提高转换梁混凝土标号;但转换梁混凝土标号提的过高,应注意施工措施,避免出现收缩裂缝;
3、设置抗剪钢板;设置抗剪钢板转换梁截面抗剪可参照《组合结构设计规范》型钢转换梁截面抗剪计算公式5.2.4条

设置抗剪钢板时,部分甚至大部分剪应力转换转移到抗剪钢板上,以减小混凝土部分承担的剪应力。抗剪钢板可采用窄翼缘H焊接型钢(窄翼缘宽度仅可能小以节约钢材,其主要作用保证抗剪钢板平面外刚度),钢板沿转换梁通长布置,深入转换柱内,不承担弯矩仅承担剪力考虑,转换柱不设置构造型钢以简化做法。
针对以上案例,当采用抗剪钢板时,截面限值由3.37提高至6.74,截面在满足抗剪要求时也可相应减小。
三、结论及建议
1、转换梁考虑扭矩影响剪压比将会增大较多,说明扭矩影响所占比重较大不能忽略,设计中应考虑其影响;
2、在使用软件计算分析时,扭转系数不可按普通梁进行折减否则转换梁扭矩大大低估了,存在不安全因素;
3、对于计算难以通过截面又受限时,也可以考虑设置抗剪钢板提高剪扭承载力;